![]() |
|
| Appunti tecniche |
|
| Visite: 1833 | Gradito: |
Leggi anche appunti:Tesina di maturita' - i robot industrialiI ROBOT INDUSTRIALI 1 L'effetto dopplerL'effetto doppler L'avvento della locomotiva rese molto più notevole di prima I MaterialiI Materiali La norma UNI 7129/92, a livello di caratteristiche generali, |
![]() |
![]() |
Fabbricazione della pompa e materiali impiegati
La fabbricazione della pompa: costruzione e collaudo
Costruzione
Nel reparto torneria sono dislocate isole di lavoro collegate ad una
rete interna di trasmissione dati che permette di rilevare e monitorare i dati
della produzione in tempo reale e di mantenere sotto stretto controllo tutti
gli standard qualitativi prefissati.
L'assemblaggio viene effettuato tramite impianti completamente
automatizzati composti da apparecchiature CNC che consentono un rigoroso
rispetto delle quote di montaggio previste in fase di progettazione.
Banco prova
La struttura è utilizzata per lo studio dell'intero circuito di
raffreddamento dei motori endotermici. Il software di controllo e di gestione
del sistema è in grado di misurare le variabili termofluidodinamiche del
liquido refrigerante all'interno del motore e le prestazioni della pompa acqua.
Test di durata

Gli impianti sono utilizzati per simulare il funzionamento della pompa
acqua in condizioni estreme. Il software di controllo monitorizza un'ampia
varietà di parametri relativi al flusso del liquido all'interno della pompa
acqua. Con queste prove si misurano le prestazioni della pompa acqua (curve
caratteristiche di portata, rendimenti, potenze assorbite, vibrazioni)
Test di validazione dei prodotti
I nuovi prodotti sono soggetti a numerosi test di validazione condotti al fine di verificare il rendimento della pompa in condizioni climatiche estreme e/o in presenza di vibrazioni
CNC: Computer numerical control
Le macchine CNC, che fino agli anni '80 erano usate solo per lavorazioni ad alta precisione, sono oggi molto diffuse e impiegate in quasi ogni campo della meccanica. La tecnologia delle macchine CNC ha coperto un po' tutti i rami della meccanica; le macchine a CNC più comuni sono presse piegatrici, punzonatrici, torni, fresatrici e macchine di taglio lamiera (laser, ossitaglio, plasma, waterjet ecc.). Esse rappresentano l'evoluzione delle macchine NC, perché permettono il controllo numerico diretto da un computer esterno (DNC).
Capacità delle macchine CNC
La maggior parte dei centri di lavoro controllati da computer sono in grado di realizzare incisioni, sculture e lavorazioni di grandissima precisione. Lavorazioni realizzate su queste macchine possono anche arrivare ad essere indistinguibili ad un occhio non espertissimo rispetto a oggetti d'arte realizzati a mano. Se utilizzate con frese coniche o sferiche possono arrivare a creare superfici assolutamente lisce, di altissima precisione, in modo rapido, automatizzato e ad un costo estremamente contenuto. Le migliori macchine CNC arrivano a una precisione di un decimillesimo di millimetro (100 nanometri).
Con i controlli numerici più recenti iniziano ad implementare funzioni di lavorazione avanzata delle superfici, permettendo di lavorare superfici 3D. Lo sfruttamento ottimale delle caratteristiche di queste macchine può avvenire o attraverso appositi accessori per copiatura e stampi, oppure via computer, attraverso una catena di programmi: prima si crea con il CAD un oggetto, che poi viene passato al CAM che si incarica di creare il programma per la realizzazione su una data macchina, e infine il programma viene eseguito dalla macchina creando l'oggetto materiale.
Caratteristica principale di queste macchine è il numero di gradi di libertà disponibili, detti assi della macchina. I tipi più comuni sono a 2 o 3 assi X,Y e Z: Pezzi limitati a lavorazioni piane con variazioni di profondità. Oltre al movimento sui tre assi X,Y e Z si aggiunge l'inclinazione (ed eventualmente la rotazione) del mandrino.
Comandi CNC
Generalmente la programmazione di queste macchine avviene usando un linguaggio standardizzato, il cosiddetto codice ISO, che stabilisce una base comune a tutte le macchine CNC; praticamente tutti i costruttori, però, estendono o modificano le funzioni ISO previste, per cui lo standard deve essere considerato dai programmatori una guida di massima, che va integrata con la manualistica della particolare macchina da programmare.
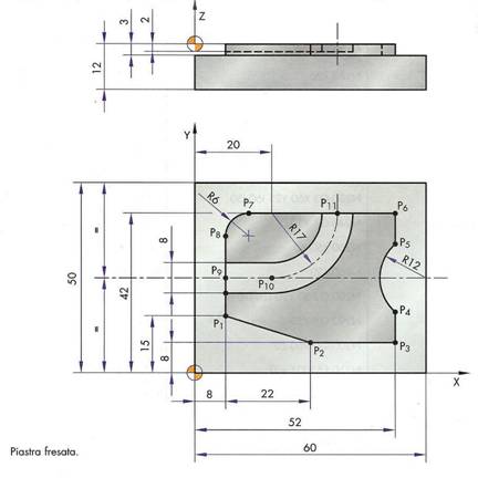
A titolo di esempio, ecco un semplice programma ISO per una generica fresatrice:
|
Istruzione di programma |
Utensile utilizzato |
|
T1 |
Fresa d=20 |
|
T2 |
Fresa d=8 |
|
Istruzioni di programma |
Funzione |
|
N010 M0 N020 G54.02 X24 Y24 T1 M6 N030 G90 G0 X-14.09 Y11.53 M8 N040 G44 Z3. M3 S300 N050 G1 Z-3. F40. N060 G42 X4.97 Y47 F120 N070 X26.97 Y-1.53 N080 G3 X30. Y-2. 130. J8. N090 G1 X52. N100 G3 X62. Y8. 152. J8. N110 G1 Y16.06 N120 G3 X58.67 Y23.52 153. J16.06 N130 G3 X58.67 Y26.49 160. J2 N140 G3 X62. Y22.94 152.J42 N150 G1 Y42. N160 G3 X52. Y52. 152. J42 N170 G1 Y42 N180 G3 X-2. Y36. I14. J36. N190 G1 Y11 N200 G40 N210 G0 Z50. M9 N220 M0 N230 G54.2 X.24 Y24 T2 M6 N240 G0 X2. Y2 M8 N250 G44 Z3. M3 S900 N260 G1 Z-2. F40 N270 XF2. F160. N280 X20. N290 G3 X37. Y42. 120. J42. N300 G1 Y48. N310G0 Z50. M9 N320 G0 D0 Z0 N330 M2 |
Cambio utensile Posizionamento orizzontale e refrigerante Discesa verticale e rotazione mandrino Discesa in lavoro a quota Su P1, correzione destra raggio utensile Interpolazione lineare fino a P2 Interpolazione circolare antioraria su P2 Interpolazione lineare fino a P3 Interpolazione circolare antioraria su P3 Interpolazione lineare fino a P4 Interpolazione circolare antioraria su P4 Interpolazione circolare oraria su P5 Interpolazione circolare antioraria su P5 Interpolazione lineare fino a P6 Interpolazione circolare antioraria su P6 Interpolazione lineare fino a P7 Interpolazione circolare antioraria su P8 Interpolazione lineare oltre P1 Annullamento correzione raggio utensile Allontanamento e stop refrigerante Arresto esecuzione programma Cambio utensile Posizionamento orizzontale e refrigerante Discesa verticale e rotazione mandrino Discesa in lavoro a quota Interpolazione lineare su P9 Interpolazione lineare su P10 Interpolazione circolare antioraria su P11 Uscita dalla scanalatura Allontanamento e sto refrigerante Settaggio diametro fresa e asse z Fine programma |
![]() |
| Appunti su: |
|
| Appunti Silvicoltura | ![]() |
| Tesine Automobile | ![]() |
| Lezioni Aeronautica | ![]() |