![]() |
|
| Appunti tecniche |
|
| Visite: 2071 | Gradito: |
Leggi anche appunti:Risultati delle prove svolte con il carburatore originaleRisultati delle prove svolte con il carburatore originale 1 Dinamica dei fluidiDINAMICA DEI FLUIDI Secondo l'equazione di continuità, Cariche e campi elettriciCARICHE E CAMPI ELETTRICI Tutti i corpi sono costituiti |
![]() |
![]() |
Contesto
Gli studi sulla propulsione MPD sono iniziati al Centrospazio negli anni 80 con attività sponsorizzate dall European Space Agency ESA .
Tali attività riguardavano lo studio di una famiglia di propulsori MPD
pulsati con campo magnetico autoindotto ad alti livelli di potenza .
Il propulsore di base aveva la classica configurazione coassiale con anodo anulare in rame con diametro di 100 mm, camera di spinta semisferica in nitruro di boro e catodo in acciaio inossidabile con estremità in tungsteno.
I due elettrodi erano tali da poter essere facilmente sostituibili con anodi di diverso profilo e catodi di varie lunghezze, come mostrato in fig.
1.1, per permettere di testare la dipendenza delle prestazioni dai parametri geometrici.
Tale motore è stato realizzato in tre diverse scale mostrate in fig.1.2 per poter analizzare gli effetti di scala.

Fig.1.1: Schema del propulsore MPD sviluppato al Centrospazio
Fig.1.2: Schema del propulsore MPD sviluppato al Centrospazio
Gli esperimenti sono stati condotti utilizzando come propellente l'argon con portate da 0.1 a 10 g s, in regime pulsato con impulsi della durata di 1ms.
Ulteriori esperimenti 2] sono stati condotti confrontando le prestazioni delle varie scale alla stessa portata o scalando la portata con la superficie interna dell anodo o con il diametro dell'anodo stesso.
I dati ottenuti mostrano un andamento simile della caratteristica elettrica per ogni propulsore, evidenziando una sostanziale coincidenza dalla caratteristica elettrica dimensionale per i tre tipi di scala.
Inoltre la scala è risultata non influenzare la relazione che lega spinta e corrente di scarica, ma una leggera influenza si ha sull'efficienza.
Su propulsori aventi la stessa geometria sono state create due linee diverse per l alimentazione gassosa: la prima fornisce il propellente alla base del catodo attraverso sei orifizi di 1mm di diametro, la seconda permette un iniezione periferica vicino all'anodo attraverso dodici orifizi di
0.7 mm di diametro.
Tale modifica ha permesso di investigare l influenza non solo del tipo di propellente, ma anche del tipo di iniezione di questo in camera di accelerazione 3 .
I gas utilizzati sono stati gas puri, come idrogeno, argon, elio e azoto, e alcune loro miscele e sono stati iniettati in percentuali diverse al catodo e all'anodo.
I risultati mostrano che il tipo di gas utilizzato può avere un effetto significativo sulle prestazioni; infatti un miglioramento di impulso specifico ed efficienza di spinta sono ottenuti con gas o miscele di gas a più basso peso molecolare e a più alta velocità critica (elio e idrogeno .
Minore influenza sui risultati si ha da parte del sistema di iniezione per gas leggeri, mentre usando l'argon si hanno prestazioni migliori se questo viene egualmente iniettato al catodo e all'anodo; quando si utilizzano una miscela di gas aventi diverse velocità critiche, risulta più efficace l introduzione del gas più leggero al catodo.
Nel 1996 è stata avviata una collaborazione tra Centrospazio e Research Institute of Applied Machanics and Electrodynamics RIAME) del Moscow Aviation Institute MAI) per studi su motori MPD con campo magnetico applicato. Il campo magnetico esterno permette un utilizzo del propulsore anche a basse potenze e consente di avere una più alta stabilità della scarica ed una riduzione dell'erosione degli elettrodi.
Il motore in esame è un propulsore con camera di preionizzazione disposta esternamente all'anodo, denominato Hybrid Plasma Thruster HPT .
La ragione dell interesse per questi studi sta nel fatto che in passato era stata notata una diminuzione dei portatori di carica nella regione anodica una volta che veniva raggiunta la corrente critica e si ritiene che l iniezione di propellente già ionizzato in tale regione potesse contrastare questa mancanza.
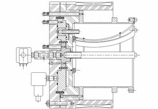
Il motore, realizzato al Centrospazio e schematizzato in fig. 1.3, consiste di un catodo cavo centrale in rame, di un anodo costituito da un cilindro di alluminio e otto strisce in rame che dividono la camera d'accelerazione centrale dalla camera di ionizzazione periferica. Le strisce sono sagomate in maniera da essere parallele alle linee del campo magnetico esterno. Nella camera di ionizzazione il propellente è iniettato attraverso otto catodi cavi periferici in rame. Questi elettrodi possono essere usati come catodi ausiliari per preionizzare il propellente periferico attraverso una scarica secondaria tra i catodi e l'anodo. Una bobina esterna all'anodo fornisce un campo magnetico fino a circa 100 mT sull'asse de motore.

Fig. 1.3. Schema del motore HPT presente al Centrospazio
La campagna di prove era volta ad indagare il comportamento del motore in varie condizioni operative, al variare della corrente di scarica, della portata di propellente e del campo magnetico esterno. I dati sperimentali mostrano che il campo magnetico incrementa impulso specifico ed efficienza di spinta per portate di 220 mg s, mentre non si ha lo stesso benefico effetto per portate di 660 mg s ad alte potenze 4 .

Fig. 1.4. Risultati della campagna di prove svolta al Centrospazio sul motore
HPT
Questo prototipo è stato utilizzato per esperimenti successivi indirizzati alla comprensione dei fenomeni che incorrono in regime di onset in collaborazione con Consorzio RFX e nell'ambito di programmi MIUR 5 .
In un precedente lavoro di tesi 6] è stato sviluppato un nuovo motore, che utilizza il gruppo catodico del Hybrid Plasma Thruster, già impiegato nella precedente campagna di prove condotta al Centrospazio, affinche sia già noto il comportamento del plasma nella zona del catodo.
In figura 1.5 è riportato lo schema del nuovo motore realizzato ad
ALTA S.p.a.
Fig. 1.5 Il nuovo motore realizzato ad ALTA.
RIFERIMENTI
1] Andrenucci M., Paganucci F., Experimental performance of MPD thrusters , AIAA 90 2 60, AIAA JSASS/DGLR 21th International Electric Propulsion Conference, Orlando,FL, July 1990
2] Andrenucci M., Paganucci F., Frazzetta M., LA Motta G., Scale effects on the performance of MPD thruster IEPC 91 123, AIDAA AIAA DGLR/JSASS 22th International Electric Propulsion Conference, Viareggio, Italy, October 1991
3] Andrenucci M., Paganucci F., "MPD thruster performance using pure gases and mixures as propellant , AIAA 95 2675, AIAA/SAE ASME ASEE 31st Joint Propulsion Conference and Exhibit, San Diego, CA, July 1995.
4] Paganucci F., Rossetti P., Andrenucci M., Tikhonov V.B., Obukhov
V.A., Performance of an applied field MPD thruster , IEPC 2001-
132, AIDAA AIAA DGLR/JSASS 27th International Electric
Propulsion Conference, Pasadena, CA, October 001.
5] Serianni G., Vianello N., Paganucci F., Rossetti P , Antoni V., Bagatin M., Andrenucci M., Plasma diagnostics in an applied field MPD thruster , IEPC 001 135, AIDAA AIAA DGLR/JSASS International Electric Propulsion Conference, 20 1.
6] Chiricò Serena, Progetto di un propulsore MPD a campo applicato di bassa potenza , Tesi di laurea in ingegneria aerospaziale, 2004-
2005.
![]() |
| Appunti su: appuntimania, |
|
| Appunti Aeronautica | ![]() |
| Tesine costruzione | ![]() |
| Lezioni Silvicoltura | ![]() |